0
Skip to Content
ABOUT
MISSION & VISION
TEAM
STRATEGIC PLAN
NEWS
PODCAST
RESOURCES
For Homeowners
For Small Businesses
For Developers & Investors
Plans & Studies
CONTACT
SUBSCRIBE
Open Menu
Close Menu
ABOUT
MISSION & VISION
TEAM
STRATEGIC PLAN
NEWS
PODCAST
RESOURCES
For Homeowners
For Small Businesses
For Developers & Investors
Plans & Studies
CONTACT
SUBSCRIBE
Open Menu
Close Menu
Folder:
ABOUT
Back
MISSION & VISION
TEAM
STRATEGIC PLAN
NEWS
PODCAST
Folder:
RESOURCES
Back
For Homeowners
For Small Businesses
For Developers & Investors
Plans & Studies
CONTACT
SUBSCRIBE
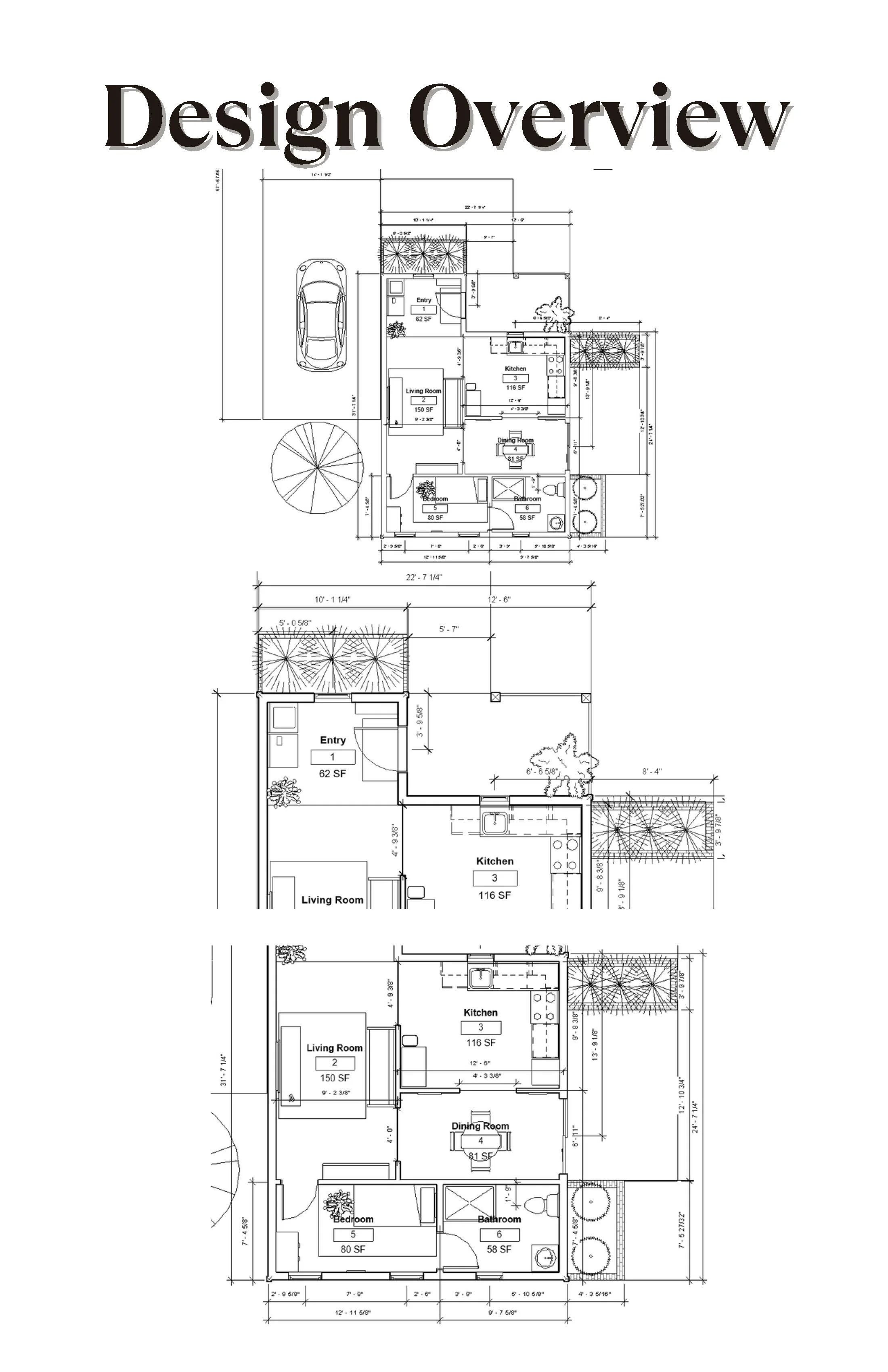
Student Winner: Grace Perrault
Previous
Previous
Rare Forms
Next
Next
Ruth Estien Garcia